Woonoppervlakte
Circa 147 m²
Perceeloppervlakte
Circa 208 m²
Bouwjaar
Gebouwd in 2009
Aantal kamers
5 kamers (4 slaapkamers)

Javalaan 444

2721 KE, Zoetermeer (Zuid-Holland)

In de geliefde wijk Oosterheem staat deze moderne hoekwoning die uitblinkt in ruimte, comfort en duurzaamheid. Dankzij energielabel A+++ en diverse toegepaste verduurzamingen woon je hier niet alleen stijlvol, maar ook toekomstgericht en energiezuinig. Met vijf kamers, waaronder vier slaapkamers van prettig formaat, is dit een ideale woning voor wie op zoek is naar ruimte en gemak.

De ligging is minstens zo aantrekkelijk. Oosterheem staat bekend als een kindvriendelijke wijk met veel groen, speelvoorzieningen en een fijne buurtuitstraling. Voor de dagelijkse boodschappen is winkelcentrum Oosterheem dichtbij, net als scholen, kinderopvang en openbaar vervoer, waaronder de RandstadRail. Voor wie van buiten zijn houdt, ligt recreatiegebied Van Tuyllpark vlakbij, terwijl de uitvalswegen je snel verbinden met de omliggende steden.

De achtertuin vormt een echt hoogtepunt: verrassend diep, uitstekend verzorgd en voorzien van een ruime veranda waar het op elk moment van de dag goed vertoeven is. Achterin de tuin vind je bovendien een carport met laadpaal, zodat ook parkeren en opladen altijd comfortabel geregeld is.

Deze goed onderhouden woning is zo te betrekken!

Indeling
Begane grond:

Bij binnenkomst via de entree vind je de meterkast, garderoberuimte en een modern toilet met fontein. Vanuit de hal is er toegang tot de ruime woonkamer. Deze is keurig afgewerkt, heeft een goede lichtinval (mede door het grote zijraam) en is overzichtelijk ingedeeld, waardoor er een prettige leefruimte ontstaat met voldoende plek voor zowel een zit- als een eethoek.

De moderne keuken in hoekopstelling met graniet werkbladen, ligt aan de voorzijde en is ingericht met diverse inbouwapparatuur, waaronder een keramische kookplaat (4 pits met zone), een vaatwasser en Quooker (beide uit 2023), een grote koelkast, een stoomoven en een heteluchtoven. Dankzij de praktische indeling is hier alle ruimte om comfortabel te koken.

Via de schuifpui in de woonkamer stap je de diepe en goed onderhouden achtertuin in. Deze biedt volop mogelijkheden om te genieten van het buitenleven en is voorzien van een ruime veranda, perfect voor lange avonden buiten. Achterin de tuin bevinden zich een berging en de carport, compleet met laadpaal voor de auto. Bovenop beschikt deze ruime achtertuin ook nog over een 2e (houten)berging aan de zijkant van de woning.

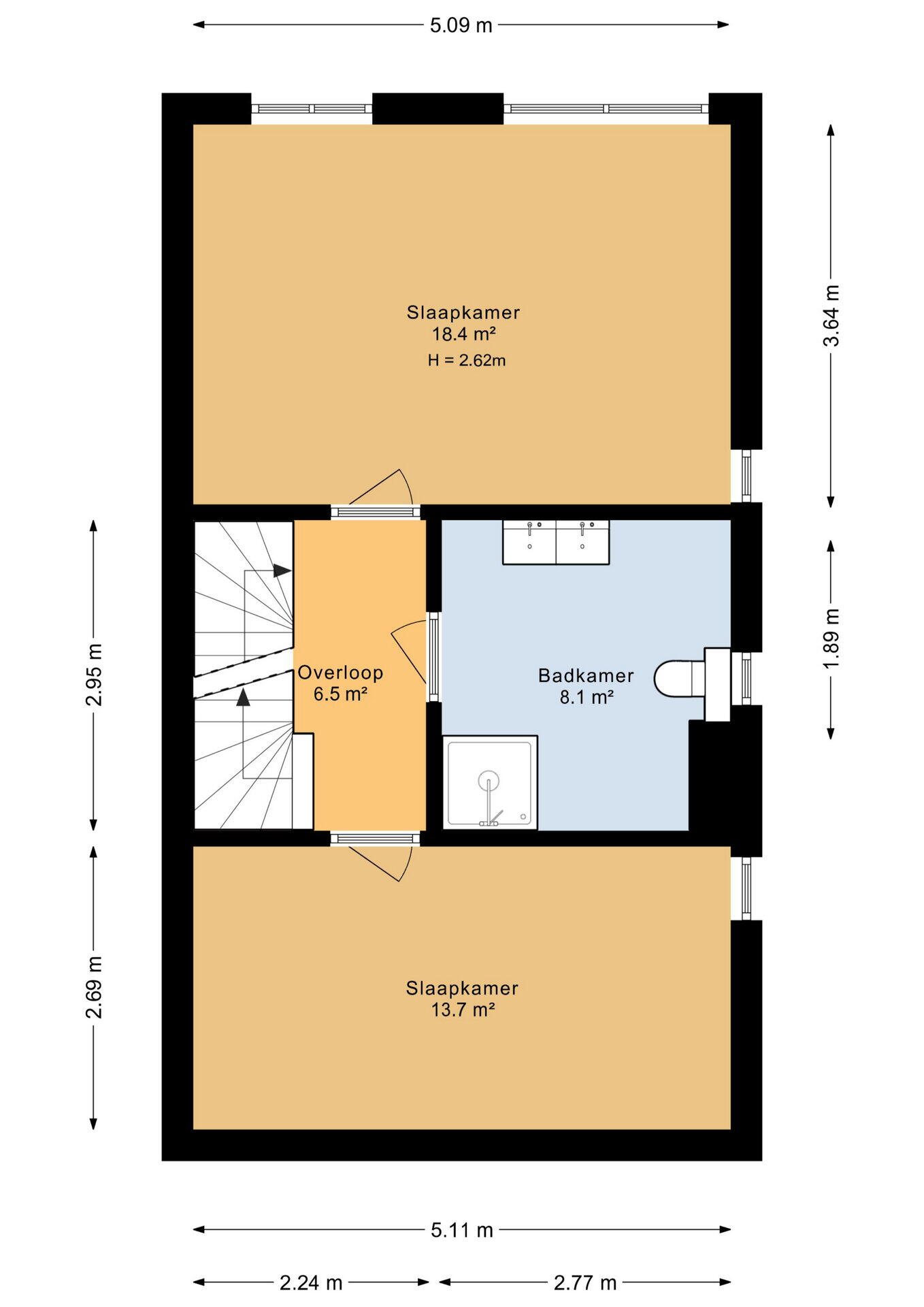
1e etage:
Vanaf de overloop op de eerste verdieping zijn twee ruime slaapkamers en de badkamer te bereiken. Beide slaapkamers zijn royaal bemeten en daardoor veelzijdig in gebruik. De kamer aan de achterzijde beschikt over airconditioning, wat zorgt voor extra comfort tijdens warme dagen. Vanuit deze kamer heeft u een mooie zichtlijn. De badkamer is verzorgd afgewerkt en uitgerust met een brede wastafel op een zuil, toilet en douche.

2e etage:
Op de tweede verdieping biedt de overloop toegang tot twee slaapkamers, die dankzij hun indeling ook uitstekend als werkruimte te gebruiken zijn. Ook deze twee slaapkamers zijn beide voorzien van een airconditioningsysteem. Door de vele ramen is er veel natuurlijk licht aanwezig. Bovendien is op deze etage ook nog een separate wasruimte aanwezig.

Wetenswaardig:
- Bouwjaar: 2009;
- Woonoppervlakte: 147 m2;
- Perceeloppervlakte: 208 m2;
- Energielabel: A+++;
- 21 zonnepanelen (2022), 365 Wp;
- Dubbel glas HR++
- Aluminium kozijnen op begane grond & 1e etage;
- Carport met laadpaal;
- Warmtepomp (2023);
- Warmwatervat 230 ltr;
- Aiconditioning (2023);
- Woning is gasloos;
- Oplevering in overleg.

Interesse in deze woning? Maak direct met ons een afspraak en schakel uw eigen NVM-aankoopmakelaar in.
Uw NVM-aankoopmakelaar komt op voor uw belang en bespaart u veel tijd, geld en zorgen.
Adressen van collega NVM-aankoopmakelaars in Zoetermeer vindt u op Funda.nl.

Deze informatie is door ons met de nodige zorgvuldigheid samengesteld. Onzerzijds wordt echter geen enkele aansprakelijkheid aanvaard voor enige onvolledigheid, onjuistheid of anderszins, dan wel de gevolgen daarvan. Alle opgegeven maten en oppervlakten zijn indicatief.

Koopovereenkomst pas rechtsgeldig na ondertekening:
Een mondelinge overeenstemming tussen de particuliere verkoper en de particuliere koper is niet rechtsgeldig. Met andere woorden: er is geen koop. Er is pas sprake van een rechtsgeldige koop als de particuliere verkoper en de particuliere koper de koopovereenkomst hebben ondertekend. Dit vloeit voort uit artikel 7:2 Burgerlijk Wetboek. Een bevestiging van de mondelinge overeenstemming per e-mail of een toegestuurd concept van de koopovereenkomst wordt overigens niet gezien als een 'ondertekende koopovereenkomst'.

Plattegronden

Overdracht

Vraagprijs
Vraagprijs: € 650.000 k.k.
Status
Verkocht
Aanvaarding
In overleg

Bouw

Object type
Eengezinswoning, hoekwoning
Soort bouw
Bestaande bouw
Bouwjaar
2009
Soort dak
Samengesteld dak

Oppervlakte en inhoud

Woonoppervlakte
147 m²
Perceeloppervlakte
208 m²
Inhoud
554 m³
Overige inpandige ruimte
5 m²
Externe bergruimte
7 m²

Indeling

Aantal kamers
5 kamers (4 slaapkamers)
Aantal badkamers
1 badkamer
Badkamervoorzieningen
Toilet, douche, dubbele wastafel, wastafelmeubel
Aantal woonlagen
3 woonlagen
Voorzieningen
Mechanische ventilatie, tv-kabel, airconditioning, glasvezel kabel, zonnepanelen

Energie

Energielabel
A+++
Energielabel registratie
08-07-2025
Isolatie
Dakisolatie, muurisolatie, vloerisolatie, volledig geïsoleerd, hr glas
Verwarming
Warmtepomp
Warm water
Elektrische boiler eigendom

Buitenruimte

Ligging
Aan drukke weg, in woonwijk, beschutte ligging
Tuin
Achtertuin, voortuin, zijtuin
Afmetingen achtertuin
100 m² (13.25 meter diep en 7.51 meter breed)
ligging tuin
Gelegen op het noordoosten en bereikbaar via achterom

Bergruimte

Schuur / berging
Vrijstaand steen
Voorzieningen
Voorzien van elektra

Garage

Soort garage
Carport
Isolatie
Geen isolatie

Parkeergelegenheid

Soort parkeergelegenheid
Openbaar parkeren, op eigen terrein

Energieverbruik in Zoetermeer

Energielabel deze woning

Energielabel A+++

Publicatie energielabel: 08-07-2025

Stroomverbruik per jaar

3300 kWh

(Gemiddelde hoekwoning in Zoetermeer)

Gasverbruik per jaar

1150 m³

(Gemiddelde hoekwoning in Zoetermeer)

* Cijfers zijn afkomstig van het CBS en bedoeld als indicatie en kunnen verschillen voor deze woning

Indicatie hypotheeklasten

Eigen inleg:
Spaargeld / overwaarde

Rente:
Laagste 10-jaars rente

Laagste 10-jaars rente

2,98% - Centraal Beheer Groen... - NHG


3,25% - Centraal Beheer Groen... - 80%

Laagste 20-jaars rente

3,29% - Centraal Beheer Groen... - NHG


3,52% - Centraal Beheer Groen... - 80%

Laagste 30-jaars rente

3,41% - Centraal Beheer Groen... - NHG


3,74% - Centraal Beheer Groen... - 80%


Hypotheek:

Bruto maandlasten: € 0 p/m

Netto maandlasten: € 0 p/m

Hoe berekenen we dit?

Het rentepercentage is gebaseerd op de laagste 10 jaars vaste rente voor één hypotheekdeel. De vermelde rente (3.25% zonder NHG) is gecontroleerd op 05-01-2026. Deze berekening is gebaseerd op een annuïteitenhypotheek die volledig wordt afgelost, waarbij de maandlasten gedurende de gehele looptijd gelijk blijven. De werkelijke rente en netto maandlasten kunnen variëren, afhankelijk van uw persoonlijke situatie en de hypotheekverstrekker. Raadpleeg een financieel adviseur voor een nauwkeurige berekening en advies. Aan deze berekening kunnen geen rechten worden ontleend; het dient enkel als indicatie.

Documentatie

Zonnegrenzen bekijken

Op de kaart

Inwoners in Zoetermeer

Cijfers voor postcodegebied 2721

Totaal aantal inwoners
10975 inwoners
Mannen
49%
Vrouwen
51%

Inwoners in Zoetermeer

Cijfers voor postcodegebied 2721

tot 15 jaar
23%
15 tot 25 jaar
12%
25 tot 35 jaar
27%
45 tot 65 jaar
25%
65 en ouder
13%

Huishoudens in Zoetermeer

Cijfers voor postcodegebied 2721

Eenpersoons zonder kinderen
23%
Meerpersoons zonder kinderen
26%
Huishoudens zonder kinderen
49%

Huishoudens in Zoetermeer

Cijfers voor postcodegebied 2721

Huishoudens met één kind
10%
Huishoudens met meerdere kinderen
42%
Huishoudens met kinderen
52%

Woningen in Zoetermeer

Cijfers voor postcodegebied 2721

Woningen voor 1945
1%
Woningen tussen 1945 en 1965
1%
Woningen tussen 1965 en 1975
1%
Woningen tussen 1975 en 1985
1%
Woningen tussen 1985 en 1995
1%

Woningen in Zoetermeer

Cijfers voor postcodegebied 2721

Woningen tussen 1995 en 2005
10%
Woningen tussen 2005 en 2015
87%
Woningen na 2015
3%
Huurwoningen
40%
Koopwoningen
60%

Overige in Zoetermeer

Cijfers voor postcodegebied 2721

Gemiddelde WOZ waarde
€ 333.000,-
Personen onder de 65 met uitkering
Niet beschikbaar

Overige in Zoetermeer

Cijfers voor postcodegebied 2721

Adressen per km²
1710
Stedelijkheid (schaal 1 op 5)
80%
Postcode kaart 2721 Gemeente kaart zoetermeer

Indien u vragen heeft of u wilt een bezichtiging inplannen, dan kunt u gebruik maken van het formulier hiernaast. Er zal daarna op korte termijn contact met u worden opgenomen.

Willem Dreeslaan 214

2729NJ, Zoetermeer

079 - 203 3059 info@kleurrijkmakelaars.nl www.kleurrijkmakelaars.nl

Kleurrijk NVM Makelaars & Taxateurs Zoetermeer

Bij Kleurrijk NVM Makelaars & Taxateurs staan wij voor u klaar. Bent u op zoek naar een makelaar die altijd bereikbaar is, snel handelt en u begeleidt bij de complexe aspecten van de aan- of verkoop van uw woning? Dan bent u bij ons aan het juiste adres. Met jarenlange ervaring in Zoetermeer, Lansingerland en Rotterdam bieden wij u deskundig advies. Wij verwelkomen u graag op ons hoofdkantoor in Zoetermeer aan de Willem Dreeslaan 214.

Kleurrijk NVM Makelaars & Taxateurs is de juiste keuze als u:

• Op zoek bent naar een specialist in aan- en verkoopbegeleiding;

• Waarde hecht aan laagdrempelige communicatie;

• Een voorkeur heeft voor duidelijke en directe communicatie;

• Belangrijk vindt dat uw makelaar goed naar u luistert;

• Het prettig vindt als uw makelaar flexibel beschikbaar is;

• Altijd direct contact wilt met uw makelaar;

• Een onafhankelijke taxatie wenst van uw woning door een van onze registertaxateurs (NWWI/NRVT).

Passie voor het vak

Vinod Lachmon, Register NVM-makelaar, heeft jarenlange ervaring opgedaan bij diverse grote makelaarskantoren in regio’s zoals Zoetermeer, Rotterdam, Lansingerland en Gouda. Hij beschikt over uitgebreide kennis en een groot netwerk. Vinod onderscheidt zich door zijn betrokkenheid, juridische precisie en de bereidheid om ook na de aan- of verkoop voor zijn klanten klaar te staan.

Kleurrijk NVM Makelaars & Taxateurs Zoetermeer
Reviews Kleurrijk NVM makelaars & taxateurs

Javalaan 444, Zoetermeer

Vraagprijs: € 650.000 k.k. - Verkocht

Helaas, deze woning is verkocht!

Net te laat, deze woning is al verkocht. Laat een zoekopdracht bij ons achter zodat wij u direct kunnen helpen wanneer er nieuw aanbod beschikbaar komt.